柏悦府装修效果图设计说明:设计师通过与业主的深入沟通,了解到他性格好爽大气,知识渊博,喜欢在家接待客人,再结合该户型依山傍水,视野开阔,内部空间比较高敞的结构特点,决定以奢华大气的欧式风格为该别墅的设计基调.

柏悦府主卧装修效果图

柏悦府餐厅装修效果图

柏悦府地下室装修效果图

柏悦府地下室影视厅装修效果图

柏悦府中厅装修效果图

柏悦府客厅装修效果图

柏悦府门厅装修效果图

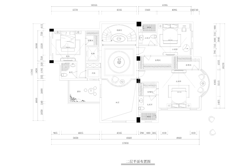
柏悦府二层平面布置图

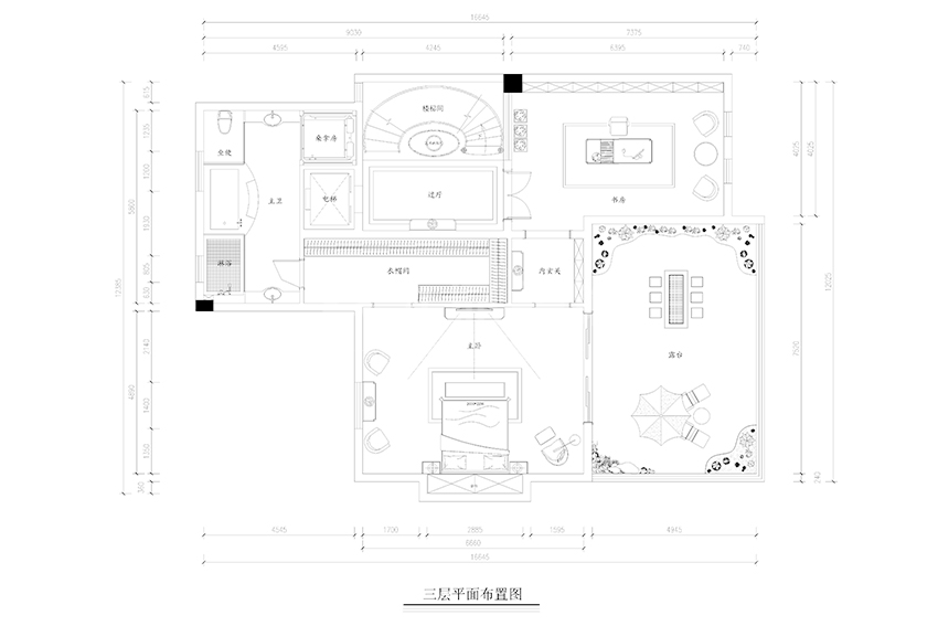
柏悦府三层平面布置图

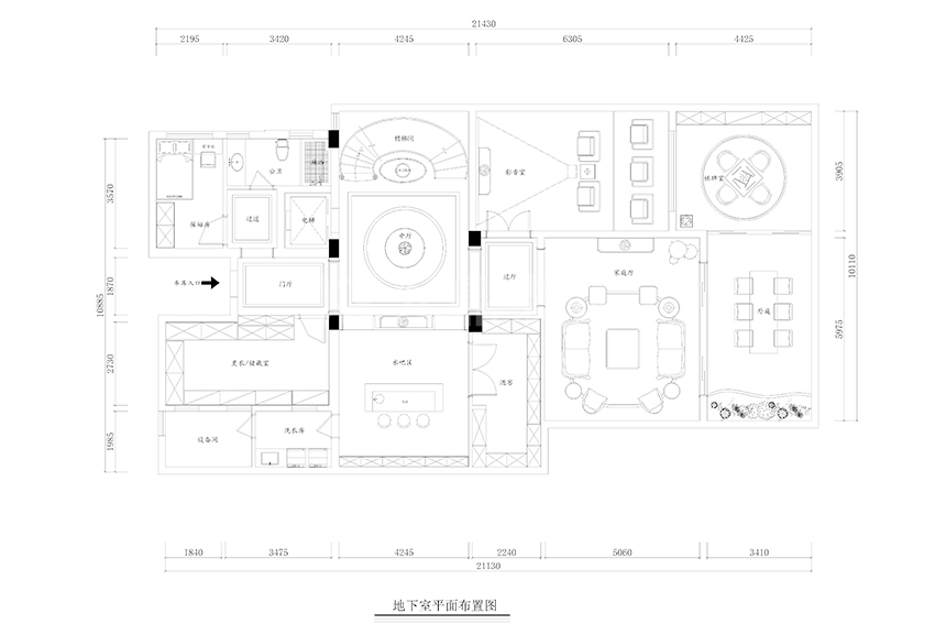
柏悦府地下室平面布置图

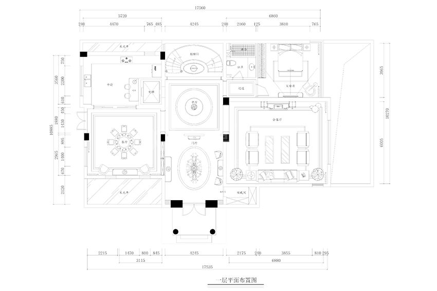
柏悦府一层平面布置图

户型:别墅
风格:欧式
面积:500㎡以上
城市:南京
柏悦府装修效果图设计说明:设计师通过与业主的深入沟通,了解到他性格好爽大气,知识渊博,喜欢在家接待客人,再结合该户型依山傍水,视野开阔,内部空间比较高敞的结构特点,决定以奢华大气的欧式风格为该别墅的设计基调.

柏悦府主卧装修效果图

柏悦府餐厅装修效果图

柏悦府地下室装修效果图

柏悦府地下室影视厅装修效果图

柏悦府中厅装修效果图

柏悦府客厅装修效果图

柏悦府门厅装修效果图

柏悦府二层平面布置图

柏悦府三层平面布置图

柏悦府地下室平面布置图

柏悦府一层平面布置图