襄阳品茶全城安排,湖北火车站快餐论坛,武汉品茶外卖工作室

 全国

康城国际装修案例

户型:三居室

风格:简美式

面积:120㎡-200㎡

城市:杭州

康城国际装修案例设计说明:想必很多人都应该知道,美国是一个非常崇尚民主自由的国家,所以,很多美式风格给人的感觉也是非常洒脱的,近年来,简美的装修风格就受到了很多人的喜爱。

卧室.jpg

卧室

此案硬装简洁明快,通过软装的点缀让整个空间洋溢着春天的气息。设计师把原来两房的空间打通,打造成开放式的厨房和客厅,厨房是比较西式的,中间的大理石岛台也是业主非常喜欢的设计。

局部一角

客餐厅

局部装饰

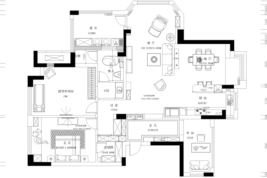
康城国际户型图.jpg

康城国际户型图

看过这套“装修案例”的人还看过

锦绣江南装修案例锦绣江南装修案例明桂北苑装修案例明桂北苑装修案例

文鼎苑装修案例文鼎苑装修案例兴议家园装修案例兴议家园装修案例

运河东苑装修案例运河东苑装修案例前滩名邸装修案例前滩名邸装修案例

广宇鼎悦府装修案例广宇鼎悦府装修案例云裳公寓装修案例云裳公寓装修案例

唐家景府装修案例唐家景府装修案例钱江五苑装修案例钱江五苑装修案例

贝利栖溪府装修案例贝利栖溪府装修案例风雅钱塘装修案例风雅钱塘装修案例

畈里张公寓装修案例畈里张公寓装修案例毛晓桦装修案例毛晓桦装修案例

德胜新村装修案例德胜新村装修案例上尚庭装修案例上尚庭装修案例

菊香苑装修案例菊香苑装修案例卓越蔚蓝领秀装修案例卓越蔚蓝领秀装修案例

三堡家园装修案例三堡家园装修案例现代雅苑装修案例现代雅苑装修案例

大园新城装修案例大园新城装修案例中天珺府装修案例中天珺府装修案例

花涧堂别墅装修案例花涧堂别墅装修案例华清山庄装修案例华清山庄装修案例

君临天下装修案例君临天下装修案例翠苑四区装修案例翠苑四区装修案例

西溪印象装修案例西溪印象装修案例景上公寓装修案例景上公寓装修案例

红郡别墅装修案例红郡别墅装修案例柳岸春风别墅装修案例柳岸春风别墅装修案例

金茂悅装修案例金茂悅装修案例阳光郡装修案例阳光郡装修案例

金兰轩装修案例金兰轩装修案例华光路装修案例华光路装修案例

白马山庄装修案例白马山庄装修案例东河锦园装修案例1东河锦园装修案例1

德清千秋名苑装修案例德清千秋名苑装修案例德信大家时代公馆装修案例德信大家时代公馆装修案例

萧山绿茵园装修案例萧山绿茵园装修案例江南新港装修案例江南新港装修案例

中海寰宇天下装修案例中海寰宇天下装修案例紫金庭园秋雪苑装修案例紫金庭园秋雪苑装修案例

东河锦园装修案例东河锦园装修案例瑞金华庭嘉苑装修案例瑞金华庭嘉苑装修案例

九洲芳园装修案例九洲芳园装修案例绿城莲园御莲轩别墅装修案例绿城莲园御莲轩别墅装修案例

龙井村自建房装修案例龙井村自建房装修案例盛世钱塘装修案例盛世钱塘装修案例

江南豪园装修案例江南豪园装修案例悦江阁装修案例悦江阁装修案例

府苑新村装修案例府苑新村装修案例竹海水韵蜜糖装修案例竹海水韵蜜糖装修案例

云树村别墅装修案例云树村别墅装修案例香港兴业耦园装修案例香港兴业耦园装修案例

万家花城装修案例万家花城装修案例软装装修案例软装装修案例

德信早城装修案例德信早城装修案例远洋心里装修案例远洋心里装修案例

御景蓝湾装修案例御景蓝湾装修案例丽水独立别墅装修案例丽水独立别墅装修案例

华元花涧堂别墅装修案例华元花涧堂别墅装修案例康城一品装修案例康城一品装修案例

桐乡软装装修案例桐乡软装装修案例红五月嘉苑装修案例红五月嘉苑装修案例

天城府装修案例天城府装修案例众安白马御府装修案例众安白马御府装修案例

钱江一苑装修案例钱江一苑装修案例东海闲湖城装修案例东海闲湖城装修案例

瑞丽东方花城装修案例瑞丽东方花城装修案例丁桥家苑装修案例丁桥家苑装修案例

龙湖春江天玺装修案例龙湖春江天玺装修案例青春都市公寓装修案例青春都市公寓装修案例

越秀前滩名邸装修案例越秀前滩名邸装修案例良渚劝学里装修案例良渚劝学里装修案例

江南之星装修案例江南之星装修案例清水湾别墅装修案例清水湾别墅装修案例

梅花三胜装修案例梅花三胜装修案例昆仑府别墅装修案例昆仑府别墅装修案例

锦绣文澜阁装修案例锦绣文澜阁装修案例龙庭一品熙园别墅装修案例龙庭一品熙园别墅装修案例

江南之星装修案例江南之星装修案例泰和花园装修案例泰和花园装修案例

水榭春天装修案例水榭春天装修案例阔石板装修案例阔石板装修案例

六合天寓装修案例六合天寓装修案例永信首府装修案例永信首府装修案例

越秀星汇城东区装修案例越秀星汇城东区装修案例越秀星汇城3期装修案例越秀星汇城3期装修案例

合景印月台装修案例合景印月台装修案例三江名苑装修案例三江名苑装修案例

新州花苑装修案例新州花苑装修案例柠檬郡装修案例柠檬郡装修案例

万科君望别墅装修案例万科君望别墅装修案例开元名城领峰府装修案例开元名城领峰府装修案例

东海闲湖城装修案例东海闲湖城装修案例府苑新村装修案例府苑新村装修案例

艮山府装修案例艮山府装修案例倾城之恋装修案例倾城之恋装修案例

唐家景府装修案例1唐家景府装修案例1龙湖春江天玺装修案例龙湖春江天玺装修案例

唐家景府装修案例唐家景府装修案例复地连城装修案例复地连城装修案例

钱江一苑装修案例钱江一苑装修案例芳洲苑装修案例芳洲苑装修案例

东方福邸装修案例东方福邸装修案例新风悦居装修案例新风悦居装修案例

湘湖美地装修案例湘湖美地装修案例湘湖南苑装修案例湘湖南苑装修案例

大华海派装修案例大华海派装修案例庭院深深装修案例庭院深深装修案例

景芳四区装修案例景芳四区装修案例梧桐苑装修效果图梧桐苑装修效果图

锁澜坊装修效果图锁澜坊装修效果图招商武林郡装修案例招商武林郡装修案例

源峰嘉园装修案例源峰嘉园装修案例钱塘新语装修案例钱塘新语装修案例

东方海岸装修案例东方海岸装修案例江南之星装修案例江南之星装修案例

保利东湾装修案例保利东湾装修案例中铁逸都装修案例中铁逸都装修案例

骆家庄装修案例骆家庄装修案例多蓝水岸装修案例多蓝水岸装修案例

阳光城上府装修案例阳光城上府装修案例爵士风情韵境苑装修案例爵士风情韵境苑装修案例

复城国际装修案例复城国际装修案例紫园装修效果图紫园装修效果图

五坊园装修效果图02五坊园装修效果图02五坊园装修效果图01五坊园装修效果图01

钱塘御景装修案例钱塘御景装修案例三里新城兰苑装修案例三里新城兰苑装修案例

盛世钱塘装修案例盛世钱塘装修案例新城香悦半岛装修案例新城香悦半岛装修案例

伊萨卡浩泽园装修案例伊萨卡浩泽园装修案例西湖国际城装修案例西湖国际城装修案例

云河西园装修案例云河西园装修案例玉屏蓝湾装修案例玉屏蓝湾装修案例

锦秀兰亭装修案例锦秀兰亭装修案例苟庄装修案例苟庄装修案例

中铁逸都二期装修案例中铁逸都二期装修案例新山水御园装修效果图新山水御园装修效果图

清华园装修案例清华园装修案例宝嘉御府装修案例宝嘉御府装修案例

花园府装修案例花园府装修案例西溪璞园别墅装修案例西溪璞园别墅装修案例

康城一品装修案例康城一品装修案例御景蓝湾装修案例御景蓝湾装修案例

锦绣兰庭装修案例锦绣兰庭装修案例香兰名苑装修案例香兰名苑装修案例

东方御府装修案例东方御府装修案例英特学府装修案例英特学府装修案例

云龙公寓装修案例云龙公寓装修案例东海水景城装修案例东海水景城装修案例

温馨人家装修案例温馨人家装修案例中港罗兰小镇装修案例中港罗兰小镇装修案例

翡翠城装修案例翡翠城装修案例武林九里装修案例武林九里装修案例

元福里别墅装修案例元福里别墅装修案例江南一号别墅装修案例江南一号别墅装修案例

水景西苑装修案例水景西苑装修案例越秀·星汇尚城装修案例越秀·星汇尚城装修案例

悦西台装修案例悦西台装修案例学院府装修案例学院府装修案例

玺之湾装修案例玺之湾装修案例首开望宸装修案例首开望宸装修案例

宝嘉誉峰装修案例宝嘉誉峰装修案例花园府软装装饰案例花园府软装装饰案例

西溪里珺园装修案例西溪里珺园装修案例万家花园装修案例万家花园装修案例

蓝庭小日子装修案例蓝庭小日子装修案例赞成檀府装修案例赞成檀府装修案例

之江九里装修案例之江九里装修案例康都紫轩装修案例康都紫轩装修案例

西溪名园别墅装修案例西溪名园别墅装修案例和谐家园装修案例和谐家园装修案例

三卫家园北装修案例三卫家园北装修案例德信东城装修案例德信东城装修案例

同协雅苑装修案例同协雅苑装修案例君望三期装修效果图君望三期装修效果图

国悦府装修案例国悦府装修案例顺发恒园装修案例顺发恒园装修案例

金祝新村装修案例金祝新村装修案例城市风景装修案例城市风景装修案例

融城印象装修案例融城印象装修案例三卫南苑装修案例三卫南苑装修案例

伊萨卡国际城别墅装修案例伊萨卡国际城别墅装修案例花园府装修效果图花园府装修效果图

赞成首府装修案例赞成首府装修案例富春山居别墅装修案例富春山居别墅装修案例

美哉美城装修案例美哉美城装修案例水湘西苑装修案例水湘西苑装修案例

宋都阳光国际装修案例宋都阳光国际装修案例融信蓝孔雀装修案例融信蓝孔雀装修案例

雍景山装修效果图雍景山装修效果图杭州公馆装修案例杭州公馆装修案例

白马山庄排屋装修案例白马山庄排屋装修案例萧山独立别墅装修案例萧山独立别墅装修案例

雍华府装修案例雍华府装修案例郁金香岸装修案例郁金香岸装修案例

金域东方装修案例金域东方装修案例富春山居悠远居装修案例富春山居悠远居装修案例

十二橡树美筑装修案例十二橡树美筑装修案例江南一号装修案例江南一号装修案例

之江城品装修案例之江城品装修案例亲亲家园装修案例亲亲家园装修案例

郡望府装修案例郡望府装修案例水景城装修案例水景城装修案例

德信浙旅东宸装修案例德信浙旅东宸装修案例阳光郡装修案例阳光郡装修案例

德信东宸装修案例德信东宸装修案例宝嘉誉峰装修案例宝嘉誉峰装修案例

联合.畔上居装修案例联合.畔上居装修案例东方海岸装修案例东方海岸装修案例

晓苑装修案例晓苑装修案例美好桂花星城装修案例美好桂花星城装修案例

申花壹号院装修案例申花壹号院装修案例大成名座装修案例大成名座装修案例

开元广场装修案例开元广场装修案例东方海岸装修案例东方海岸装修案例

宝嘉誉峰装修案例宝嘉誉峰装修案例翡翠城菩提苑装修案例翡翠城菩提苑装修案例

柏林春天装修案例柏林春天装修案例东海闲湖城装修案例东海闲湖城装修案例

桐乡旅游广场装修案例桐乡旅游广场装修案例昌运里装修案例昌运里装修案例

丽晶国际装修案例丽晶国际装修案例春江郦城装修案例春江郦城装修案例

都景公寓装修案例都景公寓装修案例独栋小别墅装修案例独栋小别墅装修案例

泊林春天装修案例泊林春天装修案例柏林印象装修案例柏林印象装修案例

理想康城一品装修案例理想康城一品装修案例耀江文鼎苑装修案例耀江文鼎苑装修案例

新丰苑装修案例新丰苑装修案例之江诚品1装修案例之江诚品1装修案例

天阳云筑装修效果图天阳云筑装修效果图天峦苑装修效果图天峦苑装修效果图

白鹭郡北装修效果图白鹭郡北装修效果图北海公园装修案例北海公园装修案例

都市水乡装修案例都市水乡装修案例之江家园装修案例之江家园装修案例

天阳上河装修案例天阳上河装修案例黄龙金茂悦装修案例黄龙金茂悦装修案例

旺角城装修案例旺角城装修案例艮山府装修案例艮山府装修案例

之江家园装修案例之江家园装修案例春江花月装修案例春江花月装修案例

金都华府装修案例金都华府装修案例宁东北苑装修案例宁东北苑装修案例

德胜东苑装修案例德胜东苑装修案例江南美农装修效果图江南美农装修效果图

都市水乡装修效果图都市水乡装修效果图春江郦城装修效果图春江郦城装修效果图

中海提香装修效果图中海提香装修效果图翰林世家装修案例翰林世家装修案例

北辰奥园装修案例北辰奥园装修案例东方海岸装修案例东方海岸装修案例

顺发旺角城装修案例顺发旺角城装修案例中海寰宇天下装修案例中海寰宇天下装修案例

高运高庄装修案例高运高庄装修案例嘉里枫华居装修案例嘉里枫华居装修案例

东方海岸装修案例东方海岸装修案例无锡时代上河装修案例无锡时代上河装修案例

桃花源装修效果图桃花源装修效果图龙湖·武林九里装修案例龙湖·武林九里装修案例

黄丽设计师获得奖章黄丽设计师获得奖章多蓝水岸装修案例多蓝水岸装修案例

同协雅苑装修效果图同协雅苑装修效果图绿尚春江城堡装修案例绿尚春江城堡装修案例

星海云庭装修案例星海云庭装修案例中粮大悦城装修案例中粮大悦城装修案例

观澜时代装修案例观澜时代装修案例九龙山庄装修案例九龙山庄装修案例

春江花月晓风苑装修案例春江花月晓风苑装修案例东方御府装修案例东方御府装修案例

钱源江名门世家装修案例钱源江名门世家装修案例古荡新村东装修案例古荡新村东装修案例

名门世家装修案例名门世家装修案例风雅乐府装修案例1风雅乐府装修案例1

三塘兰园装修案例三塘兰园装修案例玉兰花园装修案例玉兰花园装修案例

寰宇天下装修案例寰宇天下装修案例盛德博澳城装修案例盛德博澳城装修案例悦麒美寓装修案例悦麒美寓装修案例

凯旋门装修案例凯旋门装修案例之江诚品2装修案例之江诚品2装修案例

宋都晨光国际装修案例宋都晨光国际装修案例东海闲湖城装修案例东海闲湖城装修案例

佳境天城装修案例佳境天城装修案例钱塘白石嘉苑装修案例钱塘白石嘉苑装修案例

中外公寓装修案例中外公寓装修案例江辰东望装修案例江辰东望装修案例

保集蓝郡装修案例保集蓝郡装修案例环山自建别墅装修案例环山自建别墅装修案例

萧山名门世家装修案例萧山名门世家装修案例颐景园装修效果图颐景园装修效果图

个人装修案例3个人装修案例3个人装修案例4个人装修案例4

地中海装修案例地中海装修案例个人装修案例2个人装修案例2

阳光花园阳光花园金都夏宫金都夏宫

秘色轩酒店装修效果图秘色轩酒店装修效果图多思学校装修效果图多思学校装修效果图

九如府别墅装修案例九如府别墅装修案例海名雅园别墅装修效果图海名雅园别墅装修效果图

中交悦西溪叠排装修效果图中交悦西溪叠排装修效果图武林九里装修效果图武林九里装修效果图

秋水苑装修效果图秋水苑装修效果图钱江御府装修效果图钱江御府装修效果图

千岛湖自建房装修效果图千岛湖自建房装修效果图蒙卡岸装修效果图蒙卡岸装修效果图

龙湖明景台排屋装修效果图龙湖明景台排屋装修效果图浪漫河山装修效果图浪漫河山装修效果图

金色兰庭装修效果图2金色兰庭装修效果图2金色兰庭装修效果图1金色兰庭装修效果图1

金地自在城装修效果图金地自在城装修效果图江滨花园装修效果图江滨花园装修效果图

海上海装修效果图海上海装修效果图村口花园装修效果图村口花园装修效果图

城市芯宇装修效果图城市芯宇装修效果图雍容华庭装修效果图雍容华庭装修效果图

香悦半岛装修效果图香悦半岛装修效果图婺江家园装修效果图婺江家园装修效果图

武林九里装修效果图武林九里装修效果图上塘宸章装修效果图上塘宸章装修效果图

山水国际装修效果图山水国际装修效果图瑞立中央花城装修效果图瑞立中央花城装修效果图

前滩名邸装修效果图前滩名邸装修效果图明珠花园装修效果图明珠花园装修效果图

金色江南装修效果图金色江南装修效果图大家之江悦装修效果图大家之江悦装修效果图

新中式风格装修效果图新中式风格装修效果图叠排装修效果图叠排装修效果图

新华园装修效果图新华园装修效果图金色黎明装修效果图金色黎明装修效果图

东景苑别墅样板房东景苑别墅样板房星悦湾装修效果图星悦湾装修效果图

义乌样板房装修案例义乌样板房装修案例帝景天誉装修案例帝景天誉装修案例

颐和南苑装修案例颐和南苑装修案例中海桃源里装修效果图中海桃源里装修效果图

上林湖别墅装修效果图上林湖别墅装修效果图湖州别墅装修案例湖州别墅装修案例

枫丹白露装修案例枫丹白露装修案例余杭径山别墅样板房余杭径山别墅样板房

余杭瓶窑见南山假日酒店余杭瓶窑见南山假日酒店余杭区开元曼居臻选酒店余杭区开元曼居臻选酒店

良渚加利利国际英语良渚加利利国际英语塘栖百年老字号糕点店塘栖百年老字号糕点店

台州海鲜馆装修效果图台州海鲜馆装修效果图诠世传动装修效果图诠世传动装修效果图

千岛湖萨版纳酒店千岛湖萨版纳酒店金成房产英特学府公共空间金成房产英特学府公共空间

江西婺源康源山庄江西婺源康源山庄江苏常州新月板业办公楼江苏常州新月板业办公楼

杭州三晶工艺塑料办公楼杭州三晶工艺塑料办公楼杭州滨江赤渡电商杭州滨江赤渡电商

杭州转塘德力西集团杭州转塘德力西集团余杭鸬鸟董书记别墅余杭鸬鸟董书记别墅

余杭塘栖金医生叠墅余杭塘栖金医生叠墅余杭瓶窑陈总别墅余杭瓶窑陈总别墅

余杭径山金总别墅余杭径山金总别墅余杭径山高总别墅余杭径山高总别墅

余杭百丈林局自建房余杭百丈林局自建房临平康城一品装修效果图临平康城一品装修效果图

中海御道装修效果图中海御道装修效果图水景城装修效果图水景城装修效果图

诸暨装修案例诸暨装修案例紫荆庄园装修效果图紫荆庄园装修效果图

杨家门前装修效果图杨家门前装修效果图溪上玫瑰园装修效果图溪上玫瑰园装修效果图

通和金橡臻园装修效果图通和金橡臻园装修效果图桃花源云树村装修效果图桃花源云树村装修效果图

十里风荷荷园装修效果图十里风荷荷园装修效果图润和西溪郡装修效果图润和西溪郡装修效果图

良渚花苑荀庄装修效果图40良渚花苑荀庄装修效果图40良渚花苑荀庄装修效果图39良渚花苑荀庄装修效果图39

锦绣钱塘装修效果图锦绣钱塘装修效果图金地自在城装修效果图金地自在城装修效果图

华元美林公馆装修效果图华元美林公馆装修效果图华盛达·阅城公寓装修效果图华盛达·阅城公寓装修效果图

富阳自建房装修效果图富阳自建房装修效果图东海闲湖城装修效果图7东海闲湖城装修效果图7

东海闲湖城装修效果图27栋东海闲湖城装修效果图27栋东海闲湖城装修效果图17幢东海闲湖城装修效果图17幢

昌化自建房装修效果图昌化自建房装修效果图朱宅装修效果图朱宅装修效果图

世纪天城装修效果图世纪天城装修效果图深业滨江半岛装修效果图深业滨江半岛装修效果图

爱上花园装修案例爱上花园装修案例伴山香槟园别墅装修效果图伴山香槟园别墅装修效果图

香山郡装修效果图香山郡装修效果图旭日上城装修效果图旭日上城装修效果图

星河翠庭装修效果图星河翠庭装修效果图中海凤凰熙岸装修效果图中海凤凰熙岸装修效果图

保利罗兰春天装修效果图保利罗兰春天装修效果图五矿澜悦栖原装修效果图五矿澜悦栖原装修效果图

万达茂装修效果图万达茂装修效果图百家湖装修效果图百家湖装修效果图

南京融侨观邸装修效果图南京融侨观邸装修效果图南京帝豪花园装修效果图南京帝豪花园装修效果图

柏悦府装修效果图柏悦府装修效果图施家花园装修案例施家花园装修案例

侨福逸品装修案例侨福逸品装修案例艮山府装修效果图艮山府装修效果图

擎天半岛装修效果图擎天半岛装修效果图学院府装修效果图学院府装修效果图

宝嘉誉峰装修效果图宝嘉誉峰装修效果图钱江府装修效果图钱江府装修效果图

锦文雅宛装修效果图锦文雅宛装修效果图保利楼兰香谷软装装饰案例保利楼兰香谷软装装饰案例

美政美苑软装装饰案例美政美苑软装装饰案例博地办公室装修案例博地办公室装修案例

万利大厦装修案例万利大厦装修案例之江诚品装修效果图之江诚品装修效果图

理想康城一品装修效果图理想康城一品装修效果图金隅观澜时代装修效果图金隅观澜时代装修效果图

柏林印象装修效果图柏林印象装修效果图保利东湾别墅2装修效果图保利东湾别墅2装修效果图

保利东湾别墅装修效果图保利东湾别墅装修效果图办公室装修效果图办公室装修效果图

许越设计效果图集许越设计效果图集水印康庭装修案例水印康庭装修案例

万家花城装修案例万家花城装修案例桐庐别墅装修案例桐庐别墅装修案例

西溪之星装修案例西溪之星装修案例德圣银杏汇装修案例德圣银杏汇装修案例

御观邸装修案例御观邸装修案例盛世钱塘装修案例盛世钱塘装修案例

顾文杰个人装修效果图顾文杰个人装修效果图连城国际装修案例连城国际装修案例

亲亲家园紫阳坊装修案例亲亲家园紫阳坊装修案例钱塘府装修案例钱塘府装修案例

理想银泰装修案例理想银泰装修案例学院北麓装修案例学院北麓装修案例

欧美金融城装修案例欧美金融城装修案例新昌玫瑰园装修效果图新昌玫瑰园装修效果图

下沙观澜时代装修案例下沙观澜时代装修案例御景蓝湾装修案例御景蓝湾装修案例

庞凯健个人装修案例庞凯健个人装修案例现代简约风格装修案例现代简约风格装修案例

简美风格装修案例简美风格装修案例简欧风格装修案例简欧风格装修案例

星月湾装修效果图星月湾装修效果图临安淤浅装修效果图临安淤浅装修效果图

保利江语海装修效果图保利江语海装修效果图高晓丹个人装修效果图高晓丹个人装修效果图

戴骏个人装修案例戴骏个人装修案例陈艳芳个人装修效果图陈艳芳个人装修效果图

城市风景装修案例城市风景装修案例青秀城装修案例青秀城装修案例

锦绣江南装修效果图锦绣江南装修效果图金地天逸装修效果图金地天逸装修效果图

海威国际装修效果图海威国际装修效果图张佳波个人装修效果图张佳波个人装修效果图

田园牧歌麓云苑装修案例田园牧歌麓云苑装修案例柏林印象装修案例柏林印象装修案例

水景城装修案例水景城装修案例桂花城装修案例桂花城装修案例

赞成檀府装修案例赞成檀府装修案例郁金香岸装修案例郁金香岸装修案例

陆海燕个人案例集陆海燕个人案例集运新花园装修效果图运新花园装修效果图

浪漫法式装修案例浪漫法式装修案例西溪玫瑰园装修案例西溪玫瑰园装修案例

个人集装修案例6个人集装修案例6贺田尚城装修效果图贺田尚城装修效果图

玫瑰园装修案例玫瑰园装修案例个人集装修效果图个人集装修效果图

公望装修案例公望装修案例私人别墅装修案例私人别墅装修案例

紫缕苑紫缕苑新城国际彩园新城国际彩园

仁和大厦仁和大厦西溪里西溪里

欧景玺园装修效果图欧景玺园装修效果图橄榄郡装修效果图橄榄郡装修效果图

紫鸢堡装修案例紫鸢堡装修案例义乌伊美小区装修效果图义乌伊美小区装修效果图

天阳上河装修案例天阳上河装修案例御江帝景御江帝景

个人案例集个人案例集顾文杰个人案例顾文杰个人案例