装修案例设计说明:在整套方案设计上,以现代手法融入东南亚风格相结合的设计理念,并侧重不同功能空间,施以不同设计元素以达到传统与现代,实用与装饰的完美结合。

客厅
客厅一个宽大方正的空间,是整个流动空间的设计之重,它结合了餐厅空间形成一个大的开放式环境。特色而简洁的家具加上深色系的把握使整个空间大气而内敛。

客厅
还有吊顶的处理,原来空间层次单一,经过独特的思考在吊顶的处理上采用了假梁式的处理排比的手法使之空间更为大气,一方面在视觉上丰富,同时也更加的吻合装修的主题特色。
沙发后背的不是单一的墙体,而是进过处理的大型饰面装饰墙体和装饰架结合,对有收藏的爱好者来说可以充分利用空间使客厅变得更为丰
富多彩。

餐厅
餐厅是利用了后半部分与过道相结合为开放式设计,把原本较长的餐厅空间变得较为方正,从用餐的角度更增加氛围。而餐厅区天花板的造型设计完全呼应了整个设计风格,烘托出更加内敛的舒适空间效果。
餐桌风格也选用木质本身的色彩简洁大方加上特有的东南亚装饰布艺经典搭配,流畅的线条,为餐厅营造出不少属于热带异国的风情。

次卧
次卧的色调就更加柔和舒适,如果说主卧是体验异域风情的自然风光,那么次卧就是色彩后沉寂的夜晚。可以享受夜晚的宁静和异国的美梦。

卫生间

主卧
主卧是一个小套间的形式,内有卫生间设计,这在通常的户型设计是比较常见,但这里的设计有一个特点那就是墙体的设计并不是直角而是经过测算后最舒适的斜角设计,这样大大加大空间的流动性和舒适性。
两个卧室都用精致的床品,营造出卧室静谧、质朴、沉淀的质感。加上黄色荧光灯带的渲染都能美美的睡上好觉了。

玄关和书房
门厅处的巧妙在于有一个完整的玄关功能,把较长餐厅空间一分为二,前半部分采用了藤蔓为背景装饰隔断,两边又以整个风格统一的木柱造型做立柱支架,使得大气和稳重,通透的隔断又能隐约看见餐厅处的风貌,而极具东南亚的装饰物品借景抒情使得才进门厅就让人对整个家居空间无限遐想。
书房是一个独立的空间,家具简洁实用,墙上特有的装饰画以及主人在书桌上的摆放物都能体现屋主的品味和生活状态。

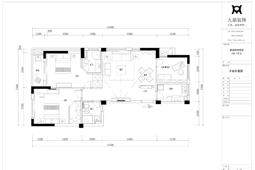
户型图
家居设计实质上是对生活的设计,东南亚式的设计风格之所以如此流行,正是因为其崇尚自然、原汁、原味。久居都市匆忙而繁碌的人们都希望得到心灵的舒缓和灵魂的释放,东南亚风格让你暂时忘却所有的烦恼和忧伤,带来亲近泥砂的快感和绝对放松的家庭。

全国
锦绣江南装修案例
明桂北苑装修案例
文鼎苑装修案例
兴议家园装修案例
运河东苑装修案例
前滩名邸装修案例
广宇鼎悦府装修案例
云裳公寓装修案例
唐家景府装修案例
钱江五苑装修案例
贝利栖溪府装修案例
风雅钱塘装修案例
畈里张公寓装修案例
毛晓桦装修案例
德胜新村装修案例
上尚庭装修案例
菊香苑装修案例
卓越蔚蓝领秀装修案例
三堡家园装修案例
现代雅苑装修案例
大园新城装修案例
中天珺府装修案例
花涧堂别墅装修案例
华清山庄装修案例
君临天下装修案例
翠苑四区装修案例
西溪印象装修案例
景上公寓装修案例
红郡别墅装修案例
柳岸春风别墅装修案例
金茂悅装修案例
阳光郡装修案例
金兰轩装修案例
华光路装修案例
白马山庄装修案例
东河锦园装修案例1
德清千秋名苑装修案例
德信大家时代公馆装修案例
萧山绿茵园装修案例
江南新港装修案例
中海寰宇天下装修案例
紫金庭园秋雪苑装修案例
东河锦园装修案例
瑞金华庭嘉苑装修案例
九洲芳园装修案例
绿城莲园御莲轩别墅装修案例
龙井村自建房装修案例
盛世钱塘装修案例
江南豪园装修案例
悦江阁装修案例
府苑新村装修案例
竹海水韵蜜糖装修案例
云树村别墅装修案例
香港兴业耦园装修案例
万家花城装修案例
软装装修案例
德信早城装修案例
远洋心里装修案例
御景蓝湾装修案例
丽水独立别墅装修案例
华元花涧堂别墅装修案例
康城一品装修案例
桐乡软装装修案例
红五月嘉苑装修案例
天城府装修案例
众安白马御府装修案例
钱江一苑装修案例
东海闲湖城装修案例
瑞丽东方花城装修案例
丁桥家苑装修案例
龙湖春江天玺装修案例
青春都市公寓装修案例
越秀前滩名邸装修案例
良渚劝学里装修案例
江南之星装修案例
清水湾别墅装修案例
梅花三胜装修案例
昆仑府别墅装修案例
锦绣文澜阁装修案例
龙庭一品熙园别墅装修案例
江南之星装修案例
泰和花园装修案例
水榭春天装修案例
阔石板装修案例
六合天寓装修案例
永信首府装修案例
越秀星汇城东区装修案例
越秀星汇城3期装修案例
合景印月台装修案例
三江名苑装修案例
新州花苑装修案例
柠檬郡装修案例
万科君望别墅装修案例
开元名城领峰府装修案例
东海闲湖城装修案例
府苑新村装修案例
艮山府装修案例
倾城之恋装修案例
唐家景府装修案例1
龙湖春江天玺装修案例
唐家景府装修案例
复地连城装修案例
钱江一苑装修案例
芳洲苑装修案例
东方福邸装修案例
新风悦居装修案例
湘湖美地装修案例
湘湖南苑装修案例
大华海派装修案例
庭院深深装修案例
景芳四区装修案例
梧桐苑装修效果图
锁澜坊装修效果图
招商武林郡装修案例
源峰嘉园装修案例
钱塘新语装修案例
东方海岸装修案例
江南之星装修案例
保利东湾装修案例
中铁逸都装修案例
骆家庄装修案例
多蓝水岸装修案例
阳光城上府装修案例
爵士风情韵境苑装修案例
复城国际装修案例
紫园装修效果图
五坊园装修效果图02
五坊园装修效果图01
钱塘御景装修案例
三里新城兰苑装修案例
盛世钱塘装修案例
新城香悦半岛装修案例
伊萨卡浩泽园装修案例
西湖国际城装修案例
云河西园装修案例
玉屏蓝湾装修案例
锦秀兰亭装修案例
苟庄装修案例
中铁逸都二期装修案例
新山水御园装修效果图
清华园装修案例
宝嘉御府装修案例
花园府装修案例
西溪璞园别墅装修案例
康城一品装修案例
御景蓝湾装修案例
锦绣兰庭装修案例
香兰名苑装修案例
东方御府装修案例
英特学府装修案例
云龙公寓装修案例
东海水景城装修案例
温馨人家装修案例
中港罗兰小镇装修案例
翡翠城装修案例
武林九里装修案例
元福里别墅装修案例
江南一号别墅装修案例
水景西苑装修案例
越秀·星汇尚城装修案例
悦西台装修案例
学院府装修案例
玺之湾装修案例
首开望宸装修案例
宝嘉誉峰装修案例
花园府软装装饰案例
西溪里珺园装修案例
万家花园装修案例
蓝庭小日子装修案例
赞成檀府装修案例
之江九里装修案例
康都紫轩装修案例
西溪名园别墅装修案例
和谐家园装修案例
三卫家园北装修案例
德信东城装修案例
同协雅苑装修案例
君望三期装修效果图
国悦府装修案例
顺发恒园装修案例
金祝新村装修案例
城市风景装修案例
融城印象装修案例
三卫南苑装修案例
伊萨卡国际城别墅装修案例
花园府装修效果图
赞成首府装修案例
富春山居别墅装修案例
美哉美城装修案例
水湘西苑装修案例
宋都阳光国际装修案例
融信蓝孔雀装修案例
雍景山装修效果图
杭州公馆装修案例
白马山庄排屋装修案例
萧山独立别墅装修案例
雍华府装修案例
郁金香岸装修案例
金域东方装修案例
富春山居悠远居装修案例
十二橡树美筑装修案例
江南一号装修案例
之江城品装修案例
亲亲家园装修案例
郡望府装修案例
水景城装修案例
德信浙旅东宸装修案例
阳光郡装修案例
德信东宸装修案例
宝嘉誉峰装修案例
联合.畔上居装修案例
东方海岸装修案例
晓苑装修案例
美好桂花星城装修案例
申花壹号院装修案例
大成名座装修案例
开元广场装修案例
东方海岸装修案例
宝嘉誉峰装修案例
翡翠城菩提苑装修案例
柏林春天装修案例
东海闲湖城装修案例
桐乡旅游广场装修案例
昌运里装修案例
丽晶国际装修案例
春江郦城装修案例
都景公寓装修案例
独栋小别墅装修案例
泊林春天装修案例
柏林印象装修案例
理想康城一品装修案例
耀江文鼎苑装修案例
新丰苑装修案例
之江诚品1装修案例
天阳云筑装修效果图
天峦苑装修效果图
白鹭郡北装修效果图
北海公园装修案例
都市水乡装修案例
之江家园装修案例
天阳上河装修案例
黄龙金茂悦装修案例
旺角城装修案例
艮山府装修案例
之江家园装修案例
春江花月装修案例
金都华府装修案例
宁东北苑装修案例
德胜东苑装修案例
江南美农装修效果图
都市水乡装修效果图
春江郦城装修效果图
中海提香装修效果图
翰林世家装修案例
北辰奥园装修案例
东方海岸装修案例
顺发旺角城装修案例
中海寰宇天下装修案例
高运高庄装修案例
嘉里枫华居装修案例
东方海岸装修案例
无锡时代上河装修案例
桃花源装修效果图
龙湖·武林九里装修案例
黄丽设计师获得奖章
多蓝水岸装修案例
同协雅苑装修效果图
绿尚春江城堡装修案例
星海云庭装修案例
中粮大悦城装修案例
观澜时代装修案例
九龙山庄装修案例
春江花月晓风苑装修案例
东方御府装修案例
钱源江名门世家装修案例
古荡新村东装修案例
名门世家装修案例
风雅乐府装修案例1
三塘兰园装修案例
玉兰花园装修案例
寰宇天下装修案例
盛德博澳城装修案例
悦麒美寓装修案例
凯旋门装修案例
之江诚品2装修案例
宋都晨光国际装修案例
东海闲湖城装修案例
佳境天城装修案例
钱塘白石嘉苑装修案例
中外公寓装修案例
江辰东望装修案例
保集蓝郡装修案例
环山自建别墅装修案例
萧山名门世家装修案例
颐景园装修效果图
个人装修案例4
地中海装修案例
个人装修案例2
阳光花园
金都夏宫
秘色轩酒店装修效果图
多思学校装修效果图
九如府别墅装修案例
海名雅园别墅装修效果图
中交悦西溪叠排装修效果图
武林九里装修效果图
秋水苑装修效果图
钱江御府装修效果图
千岛湖自建房装修效果图
蒙卡岸装修效果图
龙湖明景台排屋装修效果图
浪漫河山装修效果图
金色兰庭装修效果图2
金色兰庭装修效果图1
金地自在城装修效果图
江滨花园装修效果图
海上海装修效果图
村口花园装修效果图
城市芯宇装修效果图
雍容华庭装修效果图
香悦半岛装修效果图
婺江家园装修效果图
武林九里装修效果图
上塘宸章装修效果图
山水国际装修效果图
瑞立中央花城装修效果图
前滩名邸装修效果图
明珠花园装修效果图
金色江南装修效果图
大家之江悦装修效果图
新中式风格装修效果图
叠排装修效果图
新华园装修效果图
金色黎明装修效果图
东景苑别墅样板房
星悦湾装修效果图
义乌样板房装修案例
帝景天誉装修案例
颐和南苑装修案例
中海桃源里装修效果图
上林湖别墅装修效果图
湖州别墅装修案例
枫丹白露装修案例
余杭径山别墅样板房
余杭瓶窑见南山假日酒店
余杭区开元曼居臻选酒店
良渚加利利国际英语
塘栖百年老字号糕点店
台州海鲜馆装修效果图
诠世传动装修效果图
千岛湖萨版纳酒店
金成房产英特学府公共空间
江西婺源康源山庄
江苏常州新月板业办公楼
杭州三晶工艺塑料办公楼
杭州滨江赤渡电商
杭州转塘德力西集团
余杭鸬鸟董书记别墅
余杭塘栖金医生叠墅
余杭瓶窑陈总别墅
余杭径山金总别墅
余杭径山高总别墅
余杭百丈林局自建房
临平康城一品装修效果图
中海御道装修效果图
水景城装修效果图
诸暨装修案例
紫荆庄园装修效果图
杨家门前装修效果图
溪上玫瑰园装修效果图
通和金橡臻园装修效果图
桃花源云树村装修效果图
十里风荷荷园装修效果图
润和西溪郡装修效果图
良渚花苑荀庄装修效果图40
良渚花苑荀庄装修效果图39
锦绣钱塘装修效果图
金地自在城装修效果图
华元美林公馆装修效果图
华盛达·阅城公寓装修效果图
富阳自建房装修效果图
东海闲湖城装修效果图7
东海闲湖城装修效果图27栋
东海闲湖城装修效果图17幢
昌化自建房装修效果图
朱宅装修效果图
世纪天城装修效果图
深业滨江半岛装修效果图
爱上花园装修案例
伴山香槟园别墅装修效果图
香山郡装修效果图
旭日上城装修效果图
星河翠庭装修效果图
中海凤凰熙岸装修效果图
保利罗兰春天装修效果图
五矿澜悦栖原装修效果图
万达茂装修效果图
百家湖装修效果图
南京融侨观邸装修效果图
南京帝豪花园装修效果图
柏悦府装修效果图
施家花园装修案例
侨福逸品装修案例
艮山府装修效果图
擎天半岛装修效果图
学院府装修效果图
宝嘉誉峰装修效果图
钱江府装修效果图
锦文雅宛装修效果图
保利楼兰香谷软装装饰案例
美政美苑软装装饰案例
博地办公室装修案例
万利大厦装修案例
之江诚品装修效果图
理想康城一品装修效果图
金隅观澜时代装修效果图
柏林印象装修效果图
保利东湾别墅2装修效果图
保利东湾别墅装修效果图
办公室装修效果图
许越设计效果图集
水印康庭装修案例
万家花城装修案例
桐庐别墅装修案例
西溪之星装修案例
德圣银杏汇装修案例
御观邸装修案例
盛世钱塘装修案例
顾文杰个人装修效果图
连城国际装修案例
亲亲家园紫阳坊装修案例
钱塘府装修案例
理想银泰装修案例
学院北麓装修案例
欧美金融城装修案例
新昌玫瑰园装修效果图
下沙观澜时代装修案例
御景蓝湾装修案例
庞凯健个人装修案例
现代简约风格装修案例
简美风格装修案例
简欧风格装修案例
星月湾装修效果图
临安淤浅装修效果图
保利江语海装修效果图
高晓丹个人装修效果图
戴骏个人装修案例
陈艳芳个人装修效果图
城市风景装修案例
青秀城装修案例
锦绣江南装修效果图
金地天逸装修效果图
海威国际装修效果图
张佳波个人装修效果图
田园牧歌麓云苑装修案例
柏林印象装修案例
水景城装修案例
桂花城装修案例
赞成檀府装修案例
康城国际装修案例
郁金香岸装修案例
陆海燕个人案例集
运新花园装修效果图
浪漫法式装修案例
西溪玫瑰园装修案例
个人集装修案例6
贺田尚城装修效果图
玫瑰园装修案例
个人集装修效果图
公望装修案例
私人别墅装修案例
紫缕苑
新城国际彩园
仁和大厦
西溪里
欧景玺园装修效果图
橄榄郡装修效果图
紫鸢堡装修案例
义乌伊美小区装修效果图
天阳上河装修案例
御江帝景
个人案例集
顾文杰个人案例