融侨观邸装修效果图设计说明:本案位于南京浦口老山南麓,依山傍水,环境优越。户主私企业主,性格热情奔放,再结合该户型欧式外观结构,决定以豪华大气的欧式风格为该别墅的设计基调.

融侨观邸客厅装修效果图
设计材质: 水曲柳擦色,金箔壁纸,拼花瓷砖,大理石。
老山脚下,南京氧吧。采菊东篱,开门见山;岁月悠悠,夫复何求!

融侨观邸负一层客厅装修效果图

融侨观邸女儿房装修效果图

融侨观邸餐厅装修效果图

融侨观邸二层平面图

融侨观邸三层平面图

融侨观邸负一层平面图

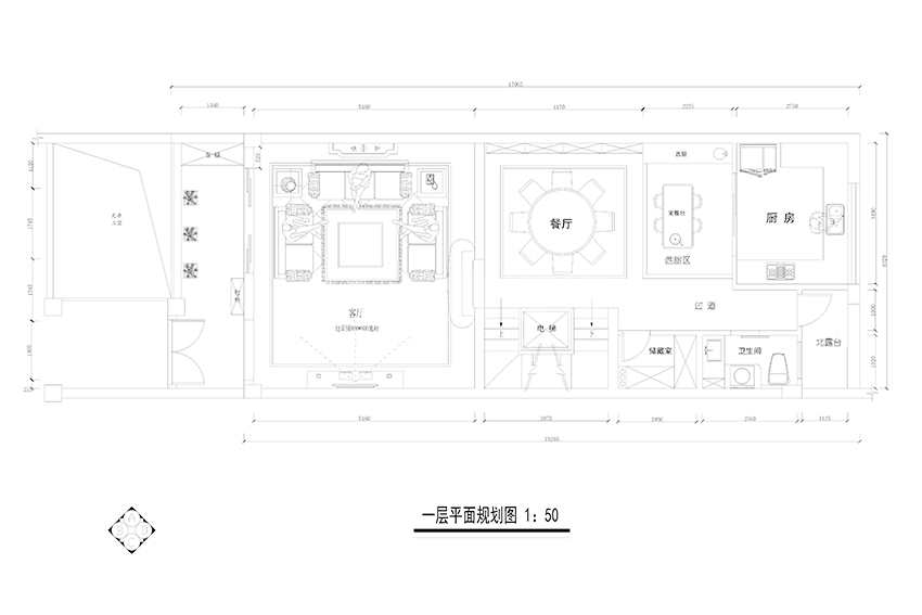
融侨观邸一层平面图

户型:联排
风格:欧式
面积:200㎡-500㎡
城市:南京
融侨观邸装修效果图设计说明:本案位于南京浦口老山南麓,依山傍水,环境优越。户主私企业主,性格热情奔放,再结合该户型欧式外观结构,决定以豪华大气的欧式风格为该别墅的设计基调.

融侨观邸客厅装修效果图
设计材质: 水曲柳擦色,金箔壁纸,拼花瓷砖,大理石。
老山脚下,南京氧吧。采菊东篱,开门见山;岁月悠悠,夫复何求!

融侨观邸负一层客厅装修效果图

融侨观邸女儿房装修效果图

融侨观邸餐厅装修效果图

融侨观邸二层平面图

融侨观邸三层平面图

融侨观邸负一层平面图

融侨观邸一层平面图